咨询在线客服
13822725067
点击:630次
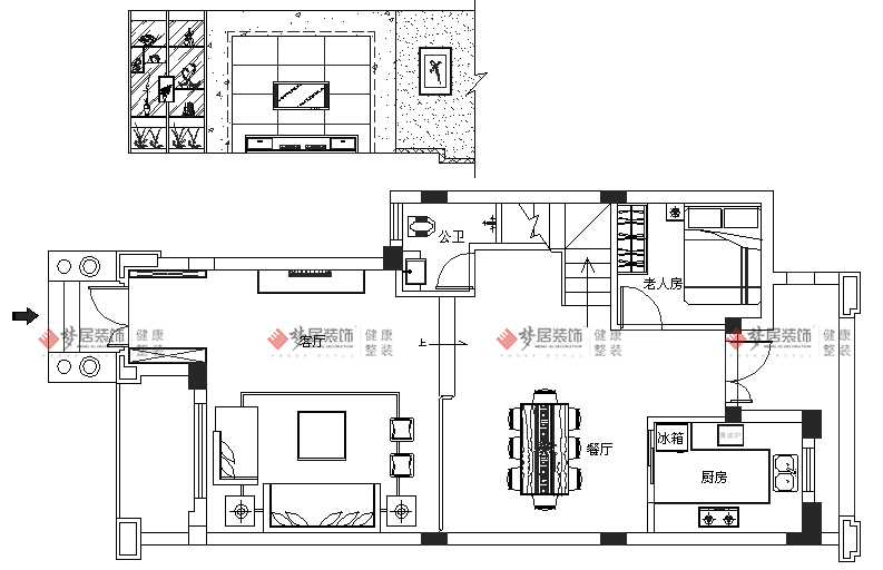
时间:2015-06-27| 楼盘名称: | 漂亮海湾城 | 案例户型: | 复式 |
| 工程面积: | 220㎡ | 工程造价: | 30万全包 |
| 案例气概: | 现代气概 | 设计师: | 第一娱乐装饰 |
| 设计说明:本案以米灰色为主,,,,,,深色为陪衬,,,,,,营造一个现代、简约、奢华的室内空间。。整个设计手法极为精练,,,,,,“以纯为美”的用材理念与简约的奢华气概浑然天成,,,,,,清新自然质料。。大胆而巧妙地使用玻璃、灰镜、白洞石、美国墙纸和水曲柳饰面板等质料,,,,,,相互间既自力又相连,,,,,,光和影的穿插,,,,,,加上细腻的装饰品与艺术挂画的遮掩,,,,,,在静中求动,,,,,,动中求静,,,,,,使整个空间的设计浑然一体,让人以为温暖、柔和、奢华的感受。。 | |||



天下直营门店
自有施工团队
业主碑力推
品质质料展厅
都会服务